Introducción
A comienzos del siglo xx en Chile se propiciaron iniciativas industriales
que cubrieran los requerimientos de un rápido crecimiento urbano que se manifestaba
no sólo en los volúmenes de población, sino en el crecimiento de las actividades
económicas en el centro y sur del país (Kirsch,
1977). Ciudades como Santiago, Valparaíso y Concepción atrajeron gran
parte de esa actividad y estimularon con sus demandas nuevos establecimientos
industriales en el ámbito metal mecánico, textil, alimentos y bebidas, papel,
gas,
materiales de construcción y, por cierto, la producción de cemento (Muñoz, 1968; Palma, 1984). Este último, paulatinamente sustituyó poco a poco a otros
materiales en la construcción de obras públicas y viviendas al ser un requerimiento
indispensable de la más moderna ingeniería (Fernández, 2015) y arquitectura nacional (Mondragón, 2010).
Una parte importante de la demanda de cemento fue cubierta con la importación desde
distintos mercados mundiales (Tafunell, 2007, p.
305), pero después de 1908 se contó con la oferta de origen nacional
suministrada por la fábrica cementera El Melón, que los propietarios de la sociedad
(Kirsch, 1977, p. 197) inauguraron a
cerca de cien kilómetros al norte de Santiago, aprovechando los materiales calcáreos
de las canteras de La Calera y El Navío como uno de sus principales recursos
primarios (Chermakian, 1965). Como otras
iniciativas creadas en esa década, El Melón debió sortear la coyuntura crítica
que
supuso el conflicto mundial iniciado en 1914, las turbulencias sociales de los
años
veinte y la dramática crisis económica de 1929 (Ortega, 2012). Al mismo tiempo, debió hacer frente a problemas más
estructurales derivados de su posición periférica a nivel mundial, dificultades
de
capitalización, dependencia técnica, así como a la inexistencia de un moderno
mercado laboral que contribuyera adecuadamente a la dotación de personal calificado
para las tareas de naturaleza industrial que se estaban emprendiendo, problemas
que
por lo demás debieron enfrentar otras iniciativas del mismo tipo en otras partes
mundo (Lemiez, 2007; López, 2010).
Situados en una coyuntura adversa, los administradores de la cementera ensayaron
diversos mecanismos para subsanar uno de sus principales problemas: dotarse de
una
mano de obra dispuesta a abrazar el trabajo industrial, y atraerla, en una región
en
que muchos de los trabajadores circulaban, a veces cíclicamente, entre las tareas
agrarias, ganaderas y una intensa actividad de pirquinaje minero de características
ancestrales,1 al menos para esa región del llamado
Norte Chico chileno (Videla, 2010). Para
ello, edificaron un completo modelo de bienestar social entre sus operarios,
esperando asegurar sus condiciones de vida y reproducción. Parte de estos programas
surgieron con el siglo debido al convencimiento de que el salario había sido un
instrumento insuficiente para persuadir y comprometer al trabajador en la medida
en
que, como lo sugieren Luc Boltanski y Eve Chiapello, el salario “constituiría,
a lo
sumo, una razón para permanecer en un empleo, no para implicarse en él” (Boltanski y Chiapello, 2002, p. 41). Ante ello,
compañías como la cementera El Melón innovaron y al adiestramiento técnico sumaron
la idea de protección al trabajo.
La dualidad de ambas estrategias se remonta a un debate ideológico anglosajón más
amplio y largo. Casi en la misma época en que el ingeniero estadunidense Frederick
Winslow Taylor visualizaba las distintas formas para hacer más eficiente el trabajo
industrial a través de la racionalización de los gestos y de las tareas concretas
de
cada operario en una sucesión encadenada de actividades, base del llamado
scientific management (véase en Coriat, 2011, pp. 33-37), el economista británico Alfred Marshall
sentaba las bases de una creciente preocupación por los efectos de la actividad
productiva en los trabajadores, pues en Principios de economía
(1903) observa la “estrecha vinculación entre nivel de vida y eficiencia económica
de la población” (véase en Díez 2014, p.
497). Esta fue la matriz en que convergió el capitalismo reformulado tras la
Depresión de 1929 y un punto crítico en los programas de bienestar social tanto
a
nivel gubernamental como en el caso específico de las industrias, en circunstancia
que diseñaron y financiaron sus propios planes de asistencia social. Ciertamente,
tales proyectos dependieron de las posibilidades económicas de las empresas de
acuerdo a la mayor magnitud y complejidad alcanzada por las grandes corporaciones
a
fines del siglo xix (Melling, 1992;
Shapayer-Makov, 2004). Pero, junto con
ello, también se encuentran diversas raíces ideológicas. El socialismo utópico
representado por Robert Owen (Díez, 2014), el
higienismo médico-social (Fijalkov, 2012) y
el reformismo social de la Iglesia Católica tras la encíclica renun
novarum (Valdivieso, 2006),
formularon desde diversas tradiciones intelectuales un campo de debate y reflexión
común en torno a la importancia de las condiciones de vida para el desarrollo
de la
industrialización.
Parte de dicha encrucijada se comenzó a percibir en diferentes proyectos industriales
en el Chile de la década de 1920, en la medida en que presentaron la dualidad
entre
la costosa y lenta materialización de la racionalización maquínica, por una parte,
y
la asistencia y bienestar social, por otra (2015; Venegas y Morales, 2017).
Es lo que, precisamente, se observa en la cementera El Melón en la medida en que
impulsó nuevas políticas para atraer fuerza de trabajo en el distrito de La Calera
persuadiendo a los trabajadores para que ingresaran en la dinámica salarial moderna,
pero, al mismo tiempo, seduciéndolos con mecanismos de otra naturaleza, cercanos
a
las prácticas de control extensivo.
De acuerdo con el control extensivo, en la nomenclatura señalada de Jean Paul de Gaudemar (1991), se propone que El
Melón dispuso un modelo donde su interés por el comportamiento de la mano de obra
excedía los límites del espacio productivo y se ampliaba en aquellos ocupados
por el
conjunto de operarios (propios o creados por las mismas sociedades industriales),
incluyendo sus familias, viviendas y los tiempos dedicados al ocio y esparcimiento.
Esto debía acompañarse por una suerte de higienismo médico y, principalmente,
moral,
lo que debía calar en la vida cotidiana de los trabajadores y en su convivencia
hogareña mediante la restricción de prácticas tan nocivas como la ingesta excesiva
de alcohol, las apuestas y la prostitución. El programa de intervención, entonces,
debía ser capaz de incidir en el fortalecimiento de la identidad del mundo obrero,
vinculando el destino de los numerosos empleados con el de la empresa y con el
ámbito social cementino construido por la fábrica. La concreción de este anhelo,
se
propone, estuvo materialmente representada por las creaciones urbanísticas de
la
compañía y orientada por la necesidad de incidir en el habitar
obrero, sobre todo después de la edificación de dos grandes y modernas
poblaciones destinadas a albergar a empleados y obreros, ya sea en las cercanías
del
complejo industrial, en la ciudad de La Calera, o en las inmediaciones de la pequeña
localidad de El Melón.
El concepto de habitar obrero remite a una forma de vida particular de obreros
asociados a fábricas que fueron capaces de incidir en la vida cotidiana de los
sujetos, mejorar considerablemente sus estándares de vivienda, salud, educación,
previsión y formas de consumo pero, al mismo tiempo, desarrollaron prácticas de
asociatividad fuertemente influenciados por las empresas y sus agentes específicos
como las entonces llamadas visitadoras sociales (Illanes, 2001; Moyano, 2016),
directores de los departamentos de bienestar o jefes de población. Lo anterior
se
manifestó no sólo en el diseño de las viviendas y los espacios comunes, sino también
en prácticas cotidianas, fiestas y formas de consumo, que llegaron a consolidar
una
identidad que colocó a la compañía como uno de los vértices más importantes de
la
vida de los sujetos, sin que se prescindiera de la vida política y sindical, o
fenómenos más complejos como la huelga obrera, no obstante, su limitada
frecuencia.
En complemento de la hipótesis anterior, es posible afirmar que, a diferencia de
otras experiencias de paternalismo industrial, la matriz interventora de la gestión
de la mano de obra implementada por El Melón, si bien presenta rasgos avanzados
en
la década de 1930, alcanzó su consolidación en el decenio siguiente. Entonces,
se
trata de una propuesta más tardía si se le compara con industrias como la azucarera
de Viña del Mar o las carboníferas del sur (Morales,
2013; Venegas, 2014, 2015; Vergara,
2013). Además, su política habitacional estuvo integrada en un discurso
social de marcado acento católico que impregnó muchas de las actividades extensivas
del Departamento de Bienestar. Así, se manifiesta un fuerte trasfondo higienista
en
muchas de sus iniciativas, acompañado de una propuesta moralizadora de acento
cristiano, patrocinador de equilibrios y paz social tan caros a los intelectuales
conservadores nacionales de raíz católica, tal como se percibe en los perspicaces
trabajos del senador Juan Enrique Concha en las primeras décadas del siglo
xx (Concha, 1918; Valdivieso, 2006) y que en el caso de la
cementera es posible encontrar en las páginas de su periódico
Cemento, editado por el Departamento de Bienestar entre los
años cuarenta y setenta del siglo xx.
El artículo está organizado en tres apartados, el primero de ellos presenta algunos
antecedentes de El Melón desde el punto de vista económico y su afán por el
bienestar social. El segundo reconoce los componentes del programa paternalista
y,
por último, se reconocen las iniciativas empresariales relacionadas con su propósito
de intervención urbana y en las dinámicas del habitar obrero. Finalmente se avanzan
algunas conclusiones en el sentido de relacionar la gestión de la cementera con
las
prácticas del paternalismo industrial.
Trayectoria de una empresa monopólica
La Sociedad Fábrica de Cemento de El Melón se constituyó legalmente el 12 de mayo
de
1906 aunque sus estatutos fueron aprobados por decretos supremos el 13 de julio
y el
15 de septiembre de ese mismo año. Se establecía como sociedad anónima, domiciliada
en la ciudad de Valparaíso y su duración inicial estaba planteada por 50 años.
El
objetivo principal de la sociedad era:
explotar el negocio de la fabricación de cemento portland y cal y sus
manufacturas, y explotar minas, fábricas y talleres que tengan por objeto
extraer o elaborar materias que se empleen en la fabricación de cemento y cal
y
sus manufacturas o que se utilicen conjuntamente con ellos; establecer empresas
de transporte para la movilización de los productos que elabore o requiera su
explotación, pudiendo extenderlas a toda clase de productos, y tener
participación en sociedades anónimas, colectivas o en comandita que tengan por
objeto algunos de los fines expresados o cualquiera otro que interese a la
sociedad (Sociedad Fábrica de Cemento de El
Melón [en adelante SFCM], 1920, p. 4).
La compañía entró en funciones en 1908 a partir de la utilización de piedra caliza
obtenida de la hacienda El Melón, ubicada en la actual región de Valparaíso (Chermakian, 1965, p. 5). Para ello contó con un
capital social inicial de 300 000 libras esterlinas, representado por igual cantidad
de acciones, totalmente pagadas. En adelante, se convirtió en una de las primeras
fábricas productoras de cemento a lo largo de casi toda la primera mitad del siglo
xx en Chile, contribuyendo a la construcción de viviendas, caminos y
las principales obras públicas del país. Según precisaba Guillermo Foerster,
diputado y miembro del directorio de El Melón, en 1914 el cemento de La Calera
era
altamente estimado por la Dirección General de Obras Públicas, que lo adquirió
para
desarrollar obras tan importantes como el Ferrocarril Transandino, las
fortificaciones en Arica, la pavimentación de Santiago y emblemáticas construcciones
como el edificio del Banco de Chile y de la Caja de Crédito Hipotecario
(Boletín de la Sociedad de Fomento Fabril, 1914, 1, p. 26). En
este sentido su producción participó plenamente de la lenta remodelación
constructiva de las principales ciudades del país.
Si bien se trató de una empresa de naturaleza monopólica, debió competir con la
importación de cemento Portland, en circunstancias que su propia producción era
insuficiente para cubrir la demanda nacional. En su primer año de ejercicio, produjo
11 000 toneladas de cemento, es decir cerca de 260 000 sacos.2
.footnoteRef} Sin embargo, en esos mismos años se importaban cerca de 70 000
toneladas, las que se elevaron a algo más de 100 000 en los años inmediatamente
anteriores a la primera guerra mundial (Tafunell,
2007, p. 306); cifra que sólo fue superada en 1929 y 1930, con ocasión
del enorme plan de construcciones realizado por la dictadura del general Carlos
Ibáñez, oportunidad en que se importaron algo más de 200 000 toneladas de cemento.
Ante esto, la cementera interpeló en reiteradas ocasiones al Congreso para obtener
un aumento en los derechos de internación, haciéndose parte de la misma campaña
que
venía realizando el gremio de los industriales, nucleada desde 1883 en la Sociedad
de Fomento Fabril.
A fines de 1930 la compañía se acogió a las disposiciones del arancel aduanero que
autorizaba al gobierno a elevar los derechos de importación hasta 35%. La medida
había sido patrocinada por el gobierno de Ibáñez, que, con la idea de construir
un
Chile nuevo, aspiraba a una política de protección de las iniciativas nacionales
de
naturaleza industrial y a la necesidad de ahorrar divisas en un momento en que
los
efectos de la grave recesión mundial ya se hacían sentir en el país (Henríquez, 2014, pp. 144-152). El
decreto 2345 referido específicamente a la producción de cemento por la fábrica
de
El Melón, establecía el aumento de tasa a 35%, pero además señalaba que: “Los
precios posteriores fijados, podrán ser alterados por acuerdo entre el gobierno
y la
Sociedad Fábrica de Cemento de El Melón, si experimentaran variación las actuales
condiciones de costo de producción.”3 A partir de
allí, la industria tuvo que acogerse a la fijación de sus precios, pero a cambio
obtuvo como garantía el reconocimiento por parte del Estado de su posición
estratégica en relación con la recuperación económica del país y aún más, su
participación en un espacio de negociación permanente a propósito de una variable
fundamental para el mercado interno: el precio de venta del cemento. Con certeza,
en
1941 se produjo la situación más compleja en estas tratativas ya que por decreto
no
sólo se aumentó el precio de venta, sino que el comisariato de precios dispuso
la
compra total de la producción y ante sí se ocupó de la comercialización de todo
el
cemento producido en La Calera; lo cual fue seguido en 1944 por la ley 7280, que
por
plazo de un año liberó de todo derecho de internación al cemento extranjero en
el
país.
Con todo, la relación entre los niveles de producción respecto de los indicadores
de
importación de cemento recorrió un camino contrapuesto (véase gráfica 1). Lo que se
convirtió en una constante durante el periodo que abarca esta investigación.
GRÁFICA 1
PRODUCCIÓN E IMPORTACIÓN DE CEMENTO EN CHILE, 1925-1948 (MILES DE TONELADASa)

a Desde 1945, la contabilidad chilena registra lo producido en la
cementera Juan Soldado, Coquimbo.
Fuente: Anuario estadístico de la República de Chile
(1925-1948).
Hacia 1941 El Melón experimentaba una época de expansión y estaba ad portas de
incrementar sustantivamente su producción, dejando atrás sus años más difíciles
desde el punto de vista económico, entre 1929 y 1934. El segundo semestre del
año
1931, debido a la acumulación de 554 000 sacos de cemento, paralizó parte de sus
faenas hasta el mes de octubre (sfcm, 1932, pp. 2-3) y de hecho redujo su
personal en forma transitoria de 677 a 611 obreros al año siguiente. En esa misma
ocasión, y a pesar de que se informaron utilidades en el balance financiero por
más
de 5 000 000 de pesos en 1931, la empresa sin inconveniente redujo los salarios
a
sus operarios. Mediante estos y otros ajustes logró superar la crisis económica,
con
la misma flexibilidad que tuvo en el ciclo 1920-1922, momento en que también acusó
la paralización de sus faenas ante la realización de sucesivas huelgas en sus
instalaciones de La Calera.
Sin embargo, las dificultades de El Melón fueron coyunturales porque en el mediano
plazo la misma crisis y la incapacidad de pagos de la economía chilena garantizaban
su rápida expansión al condicionar con fuertes restricciones las importaciones
de
cemento (véase cuadro 1). Si en 1932 la importación sólo se situaba en 11 000
toneladas, en los dos años siguientes la introducción de cemento no superó las
1 000
toneladas y de hecho con la excepción de 1935, cuando se importaron 17 000
toneladas, hasta 1939 el cemento extranjero fue definitivamente marginal en la
economía chilena. Así, los hornos que se habían paralizado algunos meses de 1931
se
encendieron en enero de 1932 y al finalizar el año se encontraba en funcionamiento
un segundo horno de calcinación. Pese a esto, los administradores afirmaban que
parte de sus aflicciones persistían debido a una “fuerte competencia y dificultades
porque la Comisión de Control de Cambios exige entregar al Banco Central una parte
del valor de la exportación en oro al cambio oficial”, es decir, todavía se dejaban
sentir los efectos de la recesión internacional (sfcm, 1933, p. 3).
CUADRO 1
COMPORTAMIENTO ECONÓMICO SOCIEDAD FÁBRICA DE CEMENTO DE EL MELÓN 1929-1946 (MILES
DE PESOS)
|
Año |
Capital social |
Utilidad CLP 1938 |
Producción (toneladas) |
Número de trabajadores |
Gastos del bienestar clp
1938 |
Inversión población clp 1938
a |
|
1929
|
24 000
|
7 631
|
143 234
|
–
|
–
|
–
|
|
1930
|
24 000
|
7 645
|
163 609
|
–
|
–
|
–
|
|
1931
|
24 000
|
5 334
|
102 310
|
737
|
–
|
–
|
|
1932
|
24 000
|
5 201
|
117 441
|
676
|
–
|
–
|
|
1933
|
24 000
|
5 793
|
139 058
|
934
|
–
|
–
|
|
1934
|
24 000
|
11 541
|
203 057
|
916
|
144
|
–
|
|
1935
|
24 000
|
18 228
|
283 385
|
1 176
|
375
|
–
|
|
1936
|
24 000
|
16 184
|
248 424
|
1 212
|
406
|
–
|
|
1937
|
24 000
|
14 073
|
317 140
|
1 498
|
1 767
|
3 262
|
|
1938
|
24 000
|
12 409
|
363 974
|
1 661
|
2 157
|
6 764
|
|
1939
|
24 000
|
9 378
|
340 786
|
1 807
|
2 918
|
7 595
|
|
1940
|
72 000
|
5 123
|
385 091
|
2 038
|
2 468
|
7 922
|
|
1941
|
72 000
|
4 734
|
359 720
|
2 134
|
4 026
|
7 806
|
|
1942
|
120 000
|
4 923
|
364 584
|
2 119
|
1 167
|
7 008
|
|
1942-1943
|
120 000
|
9 139
|
374 747
|
1 939
|
1 004
|
9 627
|
|
1943-1944
|
120 000
|
8 991
|
362 404
|
2 054
|
1 996
|
10 210
|
|
1944-1945
|
120 000
|
13 371
|
411 088
|
–
|
1 106
|
9 591
|
|
1945-1946
|
160 000
|
14 525
|
579 906
|
–
|
1 128
|
8 368
|
El incremento en la producción más decisivo de la cementera se produjo en el segundo
quinquenio de los años treinta, cuando las utilidades declaradas sobre el capital
se
elevaron en años seguidos más de 55%, alcanzando una cifra récord de 62% en
1937.4 A partir de 1934 la fábrica aumentó
progresivamente su producción y desde el primer semestre del año siguiente
funcionaba con normalidad, comenzando la ampliación de sus instalaciones. Para
ello,
el directorio informó a sus accionistas que se comenzaría a incorporar tecnología
de
Estados Unidos, esperando un aumento de la capacidad de producción hasta de 40%
(sfcm, 1936, p. 3).
Con los adelantos en la producción generados gracias a la intervención de la empresa
tras los años críticos inmediatos a la crisis de 1929, se observa un caso exitoso
de
sustitución de las importaciones. A fines de 1938 su papel monopólico no era
impedimento para ser reconocida por el gremio de los industriales en la
Revista Industria, editada mensualmente por la Sociedad de
Fomento Fabril, que se manifestaba complacida señalando que, “con las cifras leídas
queda claramente establecido que la Soc. Fábrica de Cemento El Melón está en una
situación floreciente…”.5 Hacia 1945 esa condición
continuaba plenamente vigente, aun cuando la Ley 7280 hizo aumentar la importación
a
más de 30 000 toneladas en 1944 y en el rubro del cemento ya estaban en
funcionamiento las faenas de otras explotaciones, que con el apoyo directo de
la
Corporación de Fomento de la Producción (en adelante Corfo), se
establecieron en el cerro Blanco de Polpaico y en las cercanías de Coquimbo, aunque
esta última fue adquirida a pocos años de entrar en explotación por la cementera
de
La Calera, en 1948 (Chermakian, 1965, p.
9).
Ciertamente la posición tutelar en el mercado que consiguió la Sociedad Fábrica de
Cemento de El Melón se produjo por la intervención protectora del Estado al limitar
la importación y promover la recuperación económica general del país, pero para
el
directorio había algo más: una política económica austera y previsora en la época
recesiva. Cuando sólo despuntaba su fase de prosperidad económica, el directorio
añadía un factor de su propia incumbencia al destacar que “durante siete años
no
pagó a sus accionistas dividendos en efectivo y después los hizo modestos, [lo
cual]
ha permitido afianzar nuestra posición financiera, evitándonos pagos de intereses
por el capital de explotación y permitiéndonos formar alguna reserva para las
reparaciones y renovación de la maquinaria” (sfcm, 1934, p. 4). En su
óptica estos recaudos le permitieron afrontar con agresividad el florecimiento
económico e iniciar actividades ajenas a la producción de cemento, pero igualmente
rentables. En ese plano se inscribió la consolidación de una nueva línea productiva
asociada a la venta del fertilizante con Fosfatos Melón para la agricultura; además
de los diversos proyectos en materia de provisión energética: primero, manteniendo
su participación en la mina carbonífera de Lirquén y segundo, adquiriendo el
yacimiento Cosmito, ubicado en sus proximidades, en la provincia de Concepción.
Sumado a ello, la empresa también construyó la central hidroeléctrica Los Quilos
con
las aguas del río Aconcagua. Un proyecto que recibió la generosa inversión estatal
a
través de la Corfo en 1941 (Sociedad de Fomento Fabril 6, 1941, p. 399), la
que facilitó 10 000 000 de pesos para su concreción. Así, la Sociedad Fábrica
de
Cemento de El Melón no sólo consiguió mayor seguridad en su abastecimiento
energético al dejar de depender exclusivamente del carbón, sino que también se
permitió colocar en el mercado eléctrico parte de los excedentes de su producción
a
la espera de sus nuevos hornos eléctricos en los años cincuenta, que estuvieron
plenamente operativos en La Calera en 1959.
Ubicada en el centro de los requerimientos de la política de la industrialización
dirigida por el Estado, la empresa debió plantearse nuevas metas productivas y
alinearse con las políticas de la Corfo, entidad que se convirtió en el
brazo ejecutor de la intervención estatal (Ortega,
1989). En esto, existieron circunstancias coyunturales que maximizaron
sus oportunidades, tal es el caso del plan de reconstrucción creado tras el desastre
causado por el terremoto de 1939 que afectó dramáticamente a las provincias del
centro-sur del país, porque coincidió con la ampliación de las instalaciones que
se
venían proyectando por parte del directorio, al menos desde 1935. Entre ellas
cabe
destacar los nuevos hornos rotatorios adquiridos en Estados Unidos –cuya instalación
experimentó demoras provocadas por el ingreso de dicho país en la segunda guerra
mundial– puesto que, con ellos, la compañía esperaba conseguir un aumento de la
capacidad de su producción, alcanzando hasta 500 toneladas diarias. Su idea era
llegar a mediados de los años cuarenta a la producción de 1 000 000 de sacos
mensuales, logrando la cifra récord en junio de 1946 cuando se informó a los
accionistas que la producción había superado la meta autoimpuesta (sfcm,
1946, p. 3).
Para lograrlo, la compañía necesitó de inversiones en patentes comerciales, hornos,
nuevas instalaciones para abastecerse de electricidad o altas gestiones políticas
en
las oficinas del Comisariato General de Subsidencias y Precios, entidad dependiente
del Ministerio del Trabajo que reguló desde 1930 el precio del saco de cemento
en el
mercado local, o como ya está indicado, en las oficinas siempre generosas de la
Corfo. Estas condiciones fueron fundamentales porque le permitieron
insertarse con éxito en el proceso sustitutivo de importaciones que venía gestándose
en Chile, posición que se consolidó no sólo con el aumento de los precios, sino
con
la adquisición por parte del comisariato de la totalidad del cemento extraído
de las
canteras El Navío y La Calera a partir de marzo de 1941. El asunto es que, por
sí
mismas, todas estas iniciativas no resolvían la gestión global del negocio. Un
aspecto igualmente crucial se refirió a la mano de obra que, en el periodo de
los
años treinta y cuarenta engrosó en forma progresiva las faenas mineras y fabriles
involucradas en la elaboración del cemento, pasando de 737 operarios a principio
de
la década de 1930 a algo más de 2 000 en 1944, es decir, un aumento que significó
casi el triple de los trabajadores comprometidos en la fábrica antes de su expansión
más definitiva. Lo importante es que, en adelante, la mayor parte de dichos
operarios se transformaron en una parte interesada tanto en la proyección económica
de la empresa, como en sus propias condiciones laborales y de vida, tarea en que
como veremos en seguida, la Sociedad Fábrica de Cemento de El Melón se ocupó con
denodado esfuerzo al intentar desplegar un amplio plan de asistencia y bienestar
social, aunque en el marco de una política salarial que no admitió grandes
variaciones al alza. Como lo señala Robert Castel
(2012) “el proletariado convertido en asalariado dotado de un estatuto de
empleo tiene en adelante mucho más que perder que sus cadenas” (p. 21).
La estabilidad social como requisito de los desafíos productivos
Muchas actividades productivas, especialmente aquellas vinculadas a la minería,
vieron condicionado su emplazamiento a las cercanías de las fuentes primarias
e
insumos necesarios para su trabajo. Algunas experiencias industriales también
debieron rendirse a esa necesidad. Este es el caso de la Sociedad Fábrica de Cemento
de El Melón puesto que privilegió su localización en las cercanías de las
importantes minas de piedra caliza ubicadas a escasos kilómetros de la ciudad
de La
Calera o del poblado de El Melón, en las inmediaciones del yacimiento El Navío.
Si
bien esa decisión resolvía el problema del abastecimiento oportuno y barato del
principal componente del cemento Portland, dejaba abierto otro problema que la
empresa debió esmerarse en enfrentar: la provisión de fuerza de trabajo, y más
precisamente, la atracción y formación de obreros industriales.
La presencia de trabajadores chilenos en ocupaciones sistemáticas, modernas desde
el
punto de vista de la organización laboral y el uso de la tecnología, y que además
aceptaran la condición salarial era bastante débil. Si bien muchos de los que
se
enlistaron en la fábrica habían pasado por el trabajo minero asalariado –varios
de
los cuales incluso habían retornado desde el norte salitrero– también era una
realidad que, hasta muy avanzado el siglo xx, una parte importante de esos
trabajadores había rehuido una condición salarial permanente y había preferido
una
vida itinerante entre la actividad pastoril, las tareas mineras por cuenta propia
o
un empleo temporal como complemento a una vida más autónoma (Videla, 2010). De este modo, el atractivo representado por una
fábrica como la cementera El Melón debía estar en la diferencia que se establecía
entre esas prácticas ancestrales y sus ofrecimientos para compensar el sacrificio
de
la pérdida de la libertad que los trabajadores del Norte Chico parecían defender.
La
estabilidad laboral y mejores salarios debían complementarse con otras prestaciones
para atraer y fidelizar a la masa laboral que necesitaba para sus operaciones.
Por
esta misma razón es posible advertir en la gestión de la mano de obra diseñada
por
la Sociedad Fábrica de Cemento de El Melón un punto de inflexión, que se produce
justamente en el momento en que logra acuerdos sustantivos con oficinas estatales
para consolidar su posición monopólica en el mercado nacional, asegurando una
fase
de expansión económica.
Así, de la clásica fase de control, vigilancia y castigo que la llevó a un
enfrentamiento frontal con sus trabajadores a comienzos de la década de 1920,
la
fábrica de La Calera transitó hacia mecanismos más sutiles y exitosos de
intervención social que ayudaron a generar un clima en que muchos de los
trabajadores se sintieron atraídos por la política empresarial y, aún más, mostraron
evidentes signos de consentimiento hegemónico en la perspectiva que lo discutiera
el
sociólogo británico Michael Burawoy (1985) al
examinar las distintas políticas ideológicas que han organizado la vida
industrial.
Lo que se señala, según Gaudemar (1991), Sierra (1990), López (2010), Muñiz (2007), Frey (1986) entre otros, es que la cementera
diseñó y puso en práctica una estrategia de control extensivo que tuvo su principal
motor en el servicio de bienestar y en la política de arraigo a través de la
construcción de poblaciones obreras modelos que albergaron a un importante número
de
sus trabajadores. Allí radicó una diferencia fundamental en la vida de las familias
obreras, que, en el marco de una oferta asistencial variada provista por la empresa,
convivieron con exiguos incrementos salariales (véase cuadro 2).
Cuadro 2.
CUADRO 2
JORNAL PROMEDIO NOMINAL Y DEFLACTADO DE LA SOCIEDAD FÁBRICA DE CEMENTO DE EL MELÓN,
1938-1948
|
Valor/año |
1938 |
1939 |
1940 |
1941 |
1942 |
1943 |
1944 |
1945 |
1946 |
1947 |
1948 |
|
Valor peso corriente
|
21.84
|
25
|
29.45
|
35.81
|
42.07
|
52.9
|
61.18
|
69.35
|
75.84
|
94.11
|
116.47
|
|
Valor peso a 1938a |
21.37
|
19.17
|
20.05
|
21.17
|
19.78
|
21.40
|
22.17
|
23.09
|
21.77
|
20.22
|
21.22
|
a Los jornales fueron deflactados a 1938 con base en Instituto Nacional de
Estadísticas y en Díaz, Lüders y Wagner
(2016).
Fuentes: Anuario Estadístico de la República de Chile (1938-1948), y
Comisión Económica para América Latina y el
Caribe (1951).
Los jornales de los trabajadores cementeros no sufrieron alzas que respondieran a
la
trayectoria económica expansiva de la empresa. Es lo que se colige cuando se
correlacionan con el índice de precios al consumidor por diez años, a partir de
la
fecha de inauguración de la primera población obrera en 1938. De tal modo, el
atractivo laboral no radicó en los ingresos autónomos que se garantizaban, más
sí en
el salario diferido (el conjunto de prestaciones ya señaladas) que se colocó en
el
horizonte próximo del obrero, su esposa, hijos e hijas.
El modelo de gestión del trabajo de la cementera se aproximó a lo que en la región
venía desarrollando la Compañía de Refinería de Azúcar de Viña del Mar, pionera
en
la zona en materializar políticas asistenciales y de bienestar social de acuerdo
con
lo trabajado por Robinson Lira (1996) en un
breve pero sugestivo artículo en el que aseveraba que la empresa de Julio Bernstein
había logrado en los años treinta “la adhesión del sindicato” estableciendo una
alianza “cuya finalidad fue contar en la industria con trabajadores ‘sanos’,
ordenados, laboriosos y, por tanto, más subordinados” (Lira, 1996, p. 7). Un anhelo que, en las décadas de 1930
y 1940, los empresarios industriales buscaron aprovechando un marco de regulación
laboral amplio y complejo, que contemplaba nuevas exigencias y posibilidades en
el
afán de proveer respuestas a las diferentes demandas de los sectores del trabajo
(Morris, 2011).
El diseño urbano se convirtió en piedra angular de la política social de la
cementera. En concordancia con experiencias industriales francesas, españolas
y
estadunidenses (Darley, 2010), en La Calera
se edificaron dos poblaciones con clara influencia del higienismo social (Oblet, 2005), que propugnaba desde mediados del
siglo xix, la creación de espacios residenciales limpios y ordenados para
el cobijo de los sectores del trabajo. Gracias a esta influencia grandes capitales
europeas iniciaron obras de transformación urbana e introdujeron jardines públicos,
amplias avenidas y espaciosos barrios obreros. De acuerdo con David Harvey (2014) en relación con las obras de Haussmann en
París, se “actuó sobre el espacio urbano como una totalidad en la que los diferentes
barrios de la ciudad y las diferentes funciones se ponían en relación unas con
otras
para formar una unidad de funcionamiento” (2014, p. 143). Una unidad semejante
se
proyectó en el diseño urbano desarrollado por El Melón, que construyó con un afán
totalizador (Sierra, 1990) dos conjuntos
residenciales para sus obreros en espacios contiguos a las instalaciones
productivas, donde la familia obrera cementina quedó aislada de la ciudad puesto
que
en su conjunto la población estuvo provista de escuelas, una iglesia, exclusivos
centros deportivos y recreativos.
Pareciera que, con la puesta en práctica de este conjunto de medidas, la empresa
deseaba olvidar los aciagos años de comienzos de la década de 1920 que sólo fueron
conjurados por el autoritarismo ibañista (1927-1931). Entonces, un movimiento
obrero
politizado se había empeñado en conducir a amplias capas de mineros y a los primeros
núcleos de trabajadores industriales en formación. Así, no resulta extraño que
dirigentes como Luis Víctor Cruz, en su condición de diputado por el partido Obrero
Socialista, visitara el pequeño pueblo de El Melón, desafiara al empresariado
y
animara la huelga dirigida por un consejo de la Federación Obrera de Chile que
incluía trabajadores cementeros en 1921 (La Federación Obrera de Chile, 25 de
diciembre de 1921). En aquella oportunidad, la huelga duró cerca de un mes
(diciembre de 1921 y parte de enero de 1922) y aunque se firmaron acuerdos
conciliatorios, la compañía se negó a reconocer la organización obrera, hostilizó
a
sus dirigentes y cometió arbitrariedades dada su capacidad de intervención en
los
distintos planos administrativos de la comuna: “Esta fábrica tiene injerencia
interna en cada uno, y todos los actos de la vida comunal. Como si poseyera un
largo
brazo, ella pone la mano sobre innúmeras actividades administrativas y sociales,
que
están reservadas a poderes públicos privativos del pueblo. Ni los estrados de
la
justicia se le escapan a la gerencia de El Melón, pues todo lo invade” (La
Federación Obrera de Chile 24 de febrero de 1922).
El comportamiento de la administración de la Sociedad Fábrica de Cemento de El Melón
no escapó a lo obrado por otros empresarios organizados en la Asociación del Trabajo
–gremio activo en enfrentar la autonomía obrera formado con anterioridad a la
Confederación de la Producción y el Comercio– y aun por las autoridades políticas
del Estado. Distintas fábricas, siguiendo los dictados de la asociación, mantuvieron
medidas represivas contra los trabajadores como lo fueron el despido o el rechazo
a
la sindicalización, pero con base en la idea de conciliación y armonización del
conflicto laboral, también introdujeron iniciativas tendentes a “promover el
mejoramiento de la vida obrera”,6 tal como lo
destacó en innumerables conferencias el director del ente gremial, Enrique
Caballero, a partir de 1922 en sus recorridos por Santiago, Valparaíso y Concepción.
Dicho horizonte se reprodujo en La Calera hacia los años treinta cuando la gestión
de las relaciones entre los operarios y la fábrica El Melón se enmarcó en una
nueva
estrategia de contención de los conflictos tan propios de los periodos de tránsito
económico.
Diseño urbano, bienestar y compromiso social
Tras la grave crisis de la economía chilena y mundial a comienzos de los años treinta
y embarcada en un ambicioso plan de expansión a mediano plazo, la Sociedad Fábrica
de Cemento de El Melón se sintió llamada a dar un golpe de timón en la gestión
de su
mano de obra. Una vez despejados los últimos síntomas de un ciclo recesivo en
el
segundo semestre de 1934, el directorio de la Sociedad Fábrica de Cemento de
El
Melón anunciaba la creación de su sección de bienestar social, el acto fundacional
de su nueva estrategia: “La Sección de Bienestar Social recientemente organizada
se
ha hecho cargo de todo lo relacionado con la situación de los obreros, atención
médica, escuela, entretenimientos, etc., y esperamos de esta sección resultados
beneficiosos para el bien general de nuestro personal” (sfcm, 1935, p.
3).
La compañía usó buena parte de su energía en un proyecto de fidelización de sus
trabajadores –obreros y empleados– a través de una serie de beneficios que debían
convertirse en un importante atractivo. En un primer momento el servicio de
bienestar social aseguró prestaciones en asistencia social (en caso de enfermedad
o
retiro), medicina general y más adelante incluyó la atención dental, escuelas,
instancias de ocio y diversos equipamientos que estimularon el desarrollo de
prácticas deportivas y facilitaron la realización de diversos eventos culturales
y
celebraciones anuales, entre las que destacó la fiesta de la primavera. En 1935,
los
balances financieros consignan por primera vez gastos de bienestar social, con
una
cifra cercana a 144 000 pesos, bastante menos que los 2 400 000 que encierra
dicho
ítem en el año 1940 y, ciertamente, que los 4 000 000 de pesos que se imputaron
en
el año siguiente, justo cuando el jefe de la sección de bienestar, Carlos Morel
H.,
fue electo regidor en la municipalidad de La Calera (véase cuadro 1).
Aunque los anuncios de la creación de una población obrera se hicieron en 1935, la
obra se materializó tres años después. Se inició en el primer semestre de 1936
con
la inversión de casi 2 500 000 pesos, lo cual permitió edificar 100 casas para
obreros y quince destinadas a la categoría de empleados, todas entregadas con
anterioridad al 10 de diciembre de 1938. Pero el plan urbano era más extenso:
para
1939 se contemplaba el término de otras 100 casas y se proyectaba un conjunto
de
500, así como la edificación de pabellones para solteros, cuya capacidad esperada
atendería las necesidades de no menos de 1 700 obreros (sfcm, 1939, p. 3);
tal planeación tuvo algún grado de continuidad debido a que los fondos acumulados
año tras año en la construcción de viviendas se pueden estimar en cerca de 30
000
000 de pesos, moneda corriente, invertidos en un periodo de poco menos de una
década
hasta 1946 (véase cuadro 1).
Evidentemente, la política de fijar a los trabajadores en un ámbito construido por
la
propia industria y de acuerdo con sus reglas encerraba un interés que acompañaba
su
pretendida obra benefactora. Desentrañarlo requiere examinar con especificidad
la
forma y modalidad constructiva que asumieron las viviendas y sus equipamientos
comunitarios, entendiendo que existían diferentes posibilidades y tecnologías
para
domiciliar a los obreros en los años treinta. En el Chile de esa época era común,
por una parte, el conventillo, donde un número variable de familias compartían
un
largo callejón y, por otra, edificios en bloques de cuatro pisos (Hidalgo, 2005). La población Cemento inaugurada
en 1938, así como otras poblaciones construidas por diferentes industrias en
la
misma década (Venegas y Morales, 2017),
representó una vía de asentamiento diferente a ambas técnicas de diseño
arquitectónico, pues el conjunto habitacional privilegiaba a través de viviendas
sólidas e individuales, el recogimiento y privacidad de la familia obrera. Hasta
cierto punto, las viviendas, jardines, avenidas y centros comunitarios, invitaron
a
que cada familia obrera se autorregulara como unidad doméstica. De este modo,
El
Melón no sólo domicilió a sus operarios, sino que también se propuso transmitir
normas de convivencia social, de salud pública, higiene familiar y comportamiento,
en todo lo cual la empresa se apoyó en sus cuadros administrativos y en la
permanente presencia de representantes de la Iglesia católica, miembros que
alcanzaron un lugar privilegiado en la población al participar de manera habitual
en
su sociabilidad al involucrarse, por ejemplo, en el mantenimiento de la escuela
de
varones, dirigida por la Congregación de los Hermanos Maristas.
Atraídos por el experimento urbano de los empresarios de El Melón, los editorialistas
de la Revista
Industria dieron a conocer la novel población Cemento, inspirada en
“un plan de satisfacción social para los asalariados, que a la vez que permita
exigirles un máximum de actividad, esos trabajadores puedan cumplir sus funciones
dentro de un mínimum de comodidades y bienestar que les haga más llevadera y
grata
su labor.”7
La población era única en su género y un verdadero ejemplo de vida higiénica: “demos
una ojeada a la población misma. Un centenar de casas de un piso, pintadas con
un
color amarillo muy agradable, forma las calles por las cuales discurrirá más
adelante una vida activa y feliz. Las calzadas tienen pavimento de concreto,
las
aceras, con árboles ya plantados, cuentan también con pavimento del mismo material
y
con espacios para jardines frente a cada habitación”.8
.footnoteRef}
La descripción destacaba el carácter de conjunto y las consideraciones estéticas que
conservaba la población en su inauguración, siguiendo las proposiciones que en
el
clima intelectual anglosajón se dieron a conocer bajo la escuela de la ciudad
jardín. Según Margaret Crawford en la planificación de las comunidades industriales
progresivamente se fueron adoptando modelos de responsabilidad social y grandes
empresas de Estados Unidos se comprometieron a elevar las condiciones de vida
de los
trabajadores a fines del siglo xix (Crawford, 1999, pp. 51-52). Para ello una de las medidas más
llamativas se tradujo en modernas viviendas para los obreros insertas en jardines,
áreas verdes y amplias avenidas (Miller, 2002, p.
99), que acentuaron el contraste paisajístico resultante de la
contraposición entre la monotonía de la fábrica y una adecuada vida hogareña.
Así,
resulta coherente que las viviendas de la población Cemento contemplaran
antejardines y huertos con árboles frutales, a la usanza arquitectónica y
urbanística empleada en diversas experiencias europeas (Miller, 2002, pp. 99-101). Es lo que se colige de los
planos de las primeras viviendas obreras de dicha población.
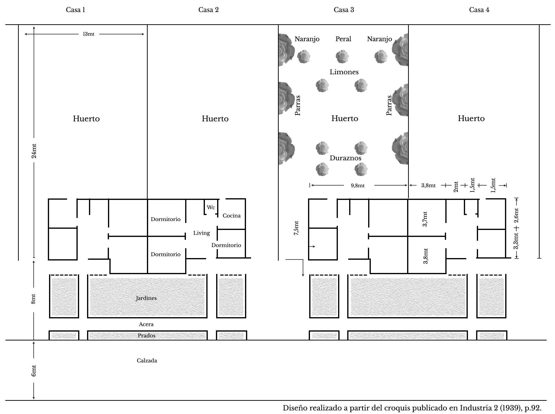
FIGURA 1
VIVIENDAS OBRERAS POBLACIÓN CEMENTO (1938)

Fuente: Revista Industria, 2[1939], 2.
En la población “todas estas casitas cuentan con servicios higiénicos completos y
reciben aire, luz y sol en perfectas condiciones”,9
bondades que se acentuaban por una manifiesta preocupación paisajística en el
sentido de que “los cerros enmarcan la población, y en medio se destacan las
notas
amarillas de las casas como un alegre penacho de plumas de
ave”.10 A esto se agregaban los espacios
interiores y la distribución de las edificaciones. Cada vivienda para empleados
era
de 110 m2 e incluía “Living room, tres dormitorios, un comedor, sala,
toilette, cocina, despensa, pieza servidumbre, WC
servidumbre”.11 Esto indica que los espacios
interiores habían sido minuciosamente diseñados y se alejaban ostensiblemente
de las
formas tradicionales de habitación obrera o popular en la medida en que estaban
acondicionadas para familias nucleares que no admitían parentescos extendidos
ni
allegados circunstanciales. Del mismo modo, cada unidad establecía una clara
distinción de los espacios y una especialización de los mismos. Los dormitorios,
sala de estar y la cocina aislada del resto de los habitáculos, alentaban la
especialización del trabajo femenino y la reclusión de la mujer en el hogar.
En el
caso de las casas destinadas a los obreros, se reproduce un patrón semejante
aunque
en un espacio doméstico más reducido ya que la edificación alcanzaba 75
m2 construidos, donde se distribuía un living room, hasta tres
dormitorios, una cocina y baño en el interior del domicilio.
En sí mismo, un patio suficiente para el desarrollo de huertos provisto de parras
y
árboles frutales (véase figura 1), el baño interior y la cocina separada de todas
las habitaciones de cada casa, eran tecnologías que pocas familias obreras habían
alcanzado a fines de los años treinta. Sobre estos nuevos materiales constructivos,
amplios espacios para la vida familiar y un paisaje urbano articulado sobre avenidas
limpias y jardines, los obreros comenzaron a forjar un nuevo habitar en El Melón.
En
él, el higienismo, sea en su vertiente física o moral, se vuelve una matriz útil
para interpretar lo que fue destacado en la época por su singularidad y
excepcionalidad: el orden, la amplitud y armonía del conjunto barrial, la limpieza,
áreas verdes y la luminosidad del proyecto.
Por cuanto se reparó en los beneficios del proyecto habitacional: “Si se atraviesa
la
calle que separa los dos recintos, se ve un cambio fundamental. En La Calera
no hay
pavimentos sólidos, ni duraderos, ni hay este lujo de árboles y esta animación
de
coloridos que se ven en la población ‘El Melón’. Mientras todo en aquella es
gris,
terroso, polvoriento, porque años de incuria y de pobreza se han detenido allí,
en
‘El Melón’ todo ríe y todo canta”.12
La incuria no sólo era fruto del contraste de los domicilios obreros predominantes
en
La Calera y El Melón. Esto era algo palpable a la vista de cualquier observador,
pero no era lo único en la medida que el servicio de bienestar de la Sociedad
Fábrica de Cemento de El Melón junto con realizar inversiones consecutivas en
la
ampliación de sus poblaciones, procuró asistencia social y un cúmulo de diferentes
iniciativas que buscaron intervenir directamente en el bienestar de la familia
obrera. Así se tiene que el complejo urbanístico consideró entre otros un
policlínico, una cooperativa de consumo, baños y lavandería, sala de teatro,
plazas
de juegos infantiles, piscina y restaurant popular. Todo ello daba cuenta de
un
esfuerzo global diseñado a transformar las pautas de comportamiento obrero, sea
en
sus nociones sobre el consumo o gasto de los salarios, como en sus nociones sobre
la
higiene o la limpieza. Esto igualmente se percibe en la provisión de huertos
en cada
residencia obrera, pues con ellos se intentaba que los miembros de la familia
obrera
utilizaran sus tiempos libres en forma productiva, sana y privada. El huerto
en cada
vivienda, el variado equipamiento comunitario y de entretenimiento que acompañaron
a
la población, dieron vida y forjaron las relaciones de los trabajadores fuera
de las
maestranzas, talleres, hornos y los yacimientos mineros. Considerando todo ello
el
contraste con la ciudad de La Calera era aún más radical, puesto que los servicios
médicos y educacionales, así como el gimnasio o el estadio, eran incomparablemente
mejores que cualquier otro al que tuvieran acceso los trabajadores de la ciudad.
El complejo urbanístico, contó desde sus inicios con una escuela de varones. Esta
se
edificó sobre una superficie de 10 800 m2, tuvo un costo de 883 000 pesos
y una capacidad inicial de 450 estudiantes. La iniciativa fue encargada a la
Congregación de los Hermanos Maristas, con un grupo de seis profesores religiosos
y
catorce civiles, considerando una nómina anual de 120 000 pesos en su primer
año de
funcionamiento, en 1937, orientada tempranamente a la formación de cuadros técnicos
destinados a servir en la propia fábrica. Aunque hasta abril de 1941 se tuvo
que
esperar la apertura de una escuela semejante para mujeres, la presencia de dicha
congregación tiñó no sólo las actividades escolares con su enseñanza confesional,
sino las más variadas instancias de sociabilidad que se desplegaron en el interior
del recinto residencial. En cada ceremonia, fiesta o agasajo entregado a obreros
premiados por alguna circunstancia especial, algún miembro de la congregación
tomó
un lugar especial, el mismo que ocupó el obispo de Valparaíso en la inauguración
de
las viviendas en 1938. Este rasgo, tan acusado en El Melón, no es fácil hallar
en
otras experiencias donde las industrias montaron servicios completos de bienestar
(Videla, Venegas y Godoy, 2016), o al
menos no con la intensidad y cobertura que obtuvieron en la compañía gestionada
por
Enrique Ariztía pues junto con tomar un lugar privilegiado en la escuela de hombres,
que llegó a tener una matrícula de 1 200 estudiantes en 1941, también lo alcanzaron
en la Revista Cemento que comenzó a circular ese año, lugar desde
donde se difundieron habitualmente “colaboraciones al servicio de la moral” firmados
por el capellán de la escuela u otro miembro de la misma.
Hasta qué punto fue relevante la escuela financiada por la empresa para crear un tipo
de relaciones laborales armoniosas, no es algo que se pueda esclarecer, pero
su
incidencia tuvo que ser importante si se complementa con las otras garantías
a las
que accedieron con regularidad los trabajadores y sus respectivas familias. En
ese
ámbito destaca el complejo deportivo que se diseñó sobre tres hectáreas colindantes
a la población por un costo inicial de 382 400 pesos. Consideraba “tribunas de
concreto con 1 200 asientos y 8 camarines con servicios higiénicos y un Buffet,
2
canchas de Tennis, una cancha de Basket-ball, 1 cancha de Foot-ball, velódromo,
foso
de saltos”,13 infraestructura que dejaba de
manifiesto el interés por, si no administrar el tiempo libre de los trabajadores,
al
menos orientarlo hacia una vida sana y virtuosa a través del deporte. Una
perspectiva similar llevó a la compañía a patrocinar también la consolidación
de un
club deportivo que animó las competencias de fútbol a nivel nacional, que además
recibió la visita de clubes del fútbol profesional como Colo Colo o la Universidad
Católica en la década de los cuarenta, lo que seguramente incidió en la sensación
de
menor aislamiento de quienes vivían en la burbuja urbanística creada por el servicio
de bienestar.
A esta notable infraestructura urbana se fue agregando una serie de otras
construcciones que se integraron al complejo programa de gestión, que, en su
aspecto
medular, estuvo organizado desde la oficina de bienestar y, en particular, por
la
activa labor realizada por las asistentes sociales. Hacia los años veinte, dichas
profesionales se involucraron en los recintos industriales, primero como
facilitadoras de la implementación de las normativas de legislación social
–accidentes laborales, cargas familiares u otras– y, junto con ello, para contener
y
resolver de problemáticas domésticas en los núcleos familiares de cada operario.
Como lo ha sostenido Karin Rosemblatt (1995),
la promoción de dichos núcleos se transformó en un aspecto crucial de las políticas
asistenciales del Frente Popular. Al respecto, por ejemplo, Raquel Fernández,
asistente de Cristalerías de Chile, señalaba que era prioritario educar al obrero
pues se “le enseña la manera de aprovechar lo que le ofrece la comunidad, le
inculca
aspiraciones, le enseña el ahorro, higiene, da nociones de puericultura a la
esposa,
la orienta en la confección de menú sano, propicia el buen empleo de las horas
libres de él y de su familia”.14
En El Melón, el papel de las asistentes sociales era central y por lo mismo se
proyectaron dos casas de 110 m2 para que dichas funcionarias convivieran
cotidianamente con la población obrera. Las primeras asistentes habían sido
contratadas en 1933 y con su experiencia se hicieron cargo de poner en práctica
el
servicio de bienestar (Alexander, 1949, p.
374). Ellas mantuvieron un entendimiento directo con las familias obreras,
realizaron permanentes visitas a sus domicilios y se entrevistaron preferentemente
con las esposas y dueñas de casa, con lo que se naturalizó su labor social en
la
medida en que se convirtieron en el brazo ejecutor del proyecto interventor y
modelador de la empresa.
Todo lo anterior muestra un panorama muy distinto al que habitaba la gran mayoría
de
los trabajadores chilenos de extracción popular, no solamente del mundo urbano,
sino
también de los espacios rurales cercanos al que se emplazaba la cementera. La
influencia del espacio físico, los materiales de construcción, el diseño y
distribución de las viviendas actuaron sobre las personas, y si bien estas
construyeron sus propias dinámicas, no lograron zafarse completamente de las
orientaciones impuestas verticalmente. La mayor parte de los hijos e hijas de
los
trabajadores fueron a las escuelas administradas por la compañía y la Iglesia
católica acompañó la vida cotidiana de sus poblaciones obreras. Del mismo modo,
la
visita de las asistentes sociales se constituyó en un evento periódico de los
hogares cementeros. Todo ello se hizo ostensible en la percepción de algunos
de los
extrabajadores, manifestado en una expresión de genuina gratitud habitual: “todo
se
lo debo a la empresa”. Aún hoy, quienes recibieron los beneficios de la compañía
se
manifiestan en ese mismo tenor, la mayoría de los recuerdos tienden a reforzar
los
lazos identitarios en una dimensión positiva.
Conclusiones
La Sociedad Fábrica de Cemento de El Melón fue distinguida en los círculos
empresariales como una de las principales compañías que emprendió una decidida
campaña por mejorar sustantivamente las condiciones de vida de sus obreros y
empleados. De acuerdo con la Sociedad de Fomento Fabril dicha actitud se rodeaba
de
un aura benefactora. Suponiendo que haya sido de ese modo, claramente las
estrategias utilizadas por estas empresas y particularmente por la compañía
cementera, constituyeron un plan diseñado para gestionar la fuerza de trabajo
y
evitar los conflictos frontales que en los años previos al autoritarismo ibañista
(1927-1931) habían distanciado al capital y al trabajo.
La búsqueda de la paz social estuvo en el centro de la gestión social empresarial,
lo
que cobraba particular importancia en momentos en que la industria El Melón disponía
de prácticamente todos los factores a su favor para consolidar su posición de
privilegio en la escena económica nacional de Chile.
Como única iniciativa en condiciones de cubrir la demanda local de cemento, la
compañía gozó de ventajas incomparables respecto de otras experiencias de la nación
chilena. Amparada, a lo menos hasta 1944, por una legislación aduanera favorable,
pudo capitalizar esas ventajas ampliando su capacidad productiva, a la vez que
copaba la oferta chilena de cemento. Sin duda los años que van desde 1934 hasta
1946
constituyen, en la primera época de formación de la industria, su periodo de mayor
dinamismo y transformación. El desempeño de la compañía fue exitoso y por lo mismo
estuvo en condiciones de ensayar una forma particular de control sobre uno de
los
factores productivos más complejos, la mano de obra. Para ello, si bien buscó
incidir en términos políticos a nivel de la institucionalidad local (en la
municipalidad, por ejemplo) y de la organización política de los trabajadores
(particularmente a nivel sindical), concentró sus afanes más bien en la intervención
y diseño de los espacios sociales que involucraban al conjunto de trabajadores
y las
relaciones resultantes. Vínculos que iban desde el comportamiento al interior
de la
fábrica, hasta aquellos que normaban la vida cotidiana, pública y privada, de
la
familia cementina. La acción empresarial tuvo en el hogar obrero su principal
foco
de atención y herramienta de intervención social y por ello dedicó sus mayores
esfuerzos y recursos a definir una política urbana coincidente con esa importancia.
La construcción de este mundo ideal debía ser la llave que asegurara la continuidad
de los trabajos y, más importante aún, la fidelización de sus trabajadores. La
casa,
la población y la fábrica, puesto que tuvieron continuidad funcional y proximidad,
constituyeron una fuerte seña de identidad obrera que difícilmente encontraron
en
otro elemento de identificación. Se trataba de la formación de una clase obrera
diferenciada que paulatinamente dejaba atrás los estragos de la pobreza y se
encaminaba, de la mano empresarial, a una sociedad de consumo. Una sociedad con
rasgos y formas de vida urbana y moderna marcada por la difusión de nuevas pautas
de
consumo doméstico.
Esa identidad fue disputada desde el sindicato, el partido político y las legítimas
acciones de resistencia de los trabajadores como es posible constatar en torno
a
1941, momento en que la compañía enfrentó una oleada de agitación obrera patrocinada
por el Partido Comunista, que se mantuvo en el manejo de los conflictos con la
empresa hasta 1946 (Peñafiel, 2017). Sin
embargo, la penetración empresarial por la vía del paternalismo fue un difícil
escollo para lograr la autonomía plena del obrero industrial involucrado en ese
tipo
de experiencias. La construcción de un modo de ser paternalista no fue privativa
de
la experiencia de El Melón, aunque encontremos en él uno de los ejemplos más
acabados. Con seguridad se puede afirmar que lo que vivió El Melón tuvo como
complemento un listado de otros complejos industriales que mantuvieron a lo largo
de
nuestro país componentes del paternalismo industrial hasta mediados del siglo
xx y, según el caso, algunos años más. La Compañía de Cervecerías
Unidas, Cristalerías de Chile, Manufactura de Papeles y Cartones de Puente Alto,
Fábrica Nacional de Sacos, Fábrica Nacional de Paños Tomé, Fábrica Nacional de
Loza
de Penco, Refinería de Azúcar de Viña del Mar, Yarur Manufacturas Chilenas de
Algodón, Manufacturas sumar o Manufacturas de Cobre (Madeco),
compartieron un modo de gestión de la fuerza de trabajo que excedió los ámbitos
propiamente productivos y canalizó sus esfuerzos para crear la ficción de la familia
industrial, aun cuando, en la cementera existieron rasgos singulares como la activa
presencia de la Iglesia católica en la cotidianidad de sus recintos residenciales,
asumiendo un papel protagónico en la educación y en cada liturgia cívica organizada
por los servicios de bienestar. El mismo que asumió en la Revista
Cemento, donde el mensaje religioso se transformó en un insumo
regular de la lectura de la comunidad obrera de la fábrica. Este rasgo no es fácil
de observar en las empresas carboníferas y textiles del centro-sur del país ni
en
los programas de asistencia creados en grandes empresas de Santiago, como
sumar o Madeco.
De esta forma, es muy probable que los trabajadores, motivo de esta gestión, hayan
mejorado realmente sus condiciones de existencia en términos concretos aun cuando,
según se observó, no alcanzaran aumentos sustantivos en sus jornales durante diez
años a partir de 1938. Y, además, es posible que retrocedieran en términos de
su
autonomía e identidad proletaria pues las garantías sociales a las que accedieron
debieron ser sopesadas en cada momento crítico de su lucha por incrementar demandas
sociales. En algunos casos sacudieron la impronta paternalista y avanzaron en
su
identificación de clase, en otros sucumbieron a sus ventajas y se pusieron al
lado
de la patronal defendiendo posturas que creyeron comunes.
Hemerografía
Boletín de la Sociedad de Fomento Fabril, 1908-1930, vols.
25-47.Santiago, Chile: Sociedad de Fomento Fabril
El Mercurio de Santiago, 1920-1923, 1937-1939. Santiago, Chile.
La Federación Obrera de Chile, 1918-1924. Santiago, Chile.
La Patria. Santiago, Chile.
Servicio Social. Santiago, Chile.
Revista Industria, 1935-1950. Sociedad de Fomento Fabril,
Santiago,Chile.
Revista Cemento. Santiago, Chile.